Chungbuk Art Center
Cultural · Chungbuk, KR
INTERNATIONAL DESIGN COMPETITION
The Chungbuk Art Center aspires to become a transformative cultural landmark that harmoniously unites architectural innovation, civic
accessibility, and regional heritage. The project’s design approach is grounded in a site utilization strategy that organically fuses interior and exterior
realms, establishing a porous spatial continuum between performance venues, public plazas, and landscaped terraces. This fluid relationship ensures
that the Art Center functions not as an isolated institution but as an open and inclusive civic environment, inviting citizens to engage freely with
art, performance, and communal life throughout the day. Visual and physical integration between the built form and its surroundings
fosters an immersive public experience in which movement, encounter, and cultural exchange occur seamlessly.

At the same time, the Art Center’s identity will be anchored in South Korea’s rich ceramic tradition, reinterpreted as both material expression and symbolic connector through the use of a ceramic protective façade, a defining architectural gesture that reinterprets South Korea’s venerable ceramic tradition in a contemporary context. Through this lens, the building becomes a vessel of heritage—one that links the diverse ceramic cultures of central South Korea into a shared narrative of creativity and pride. The result will be an iconic regional performing arts facility that not only hosts artistic excellence but also embodies collective memory and cultural continuity.
The Chungbuk Art Center will thus stand as both an architectural landmark and a living medium of connection between art, people, and place.
Site Implementation and Contextual Integration
The new Chungbuk Art Center is envisioned as an integral component of the public space within Millennium Town, forging a continuous and inclusive relationship between architecture, landscape, and urban life. The project’s spatial strategy prioritizes the strengthening of everyday publicness, ensuring that the Art Center functions not as an isolated cultural monument but as a living extension of the city’s civic realm. The southern edge of the site opens directly toward the adjacent park system, where a series of terraced landscapes, bridges, shaded promenades, and informal gathering zones mediate between the built structure and the natural terrain. This gentle transition encourages daily use and invites movement through the site whether or not performances are taking place.

Project Concept and Organizational Approach
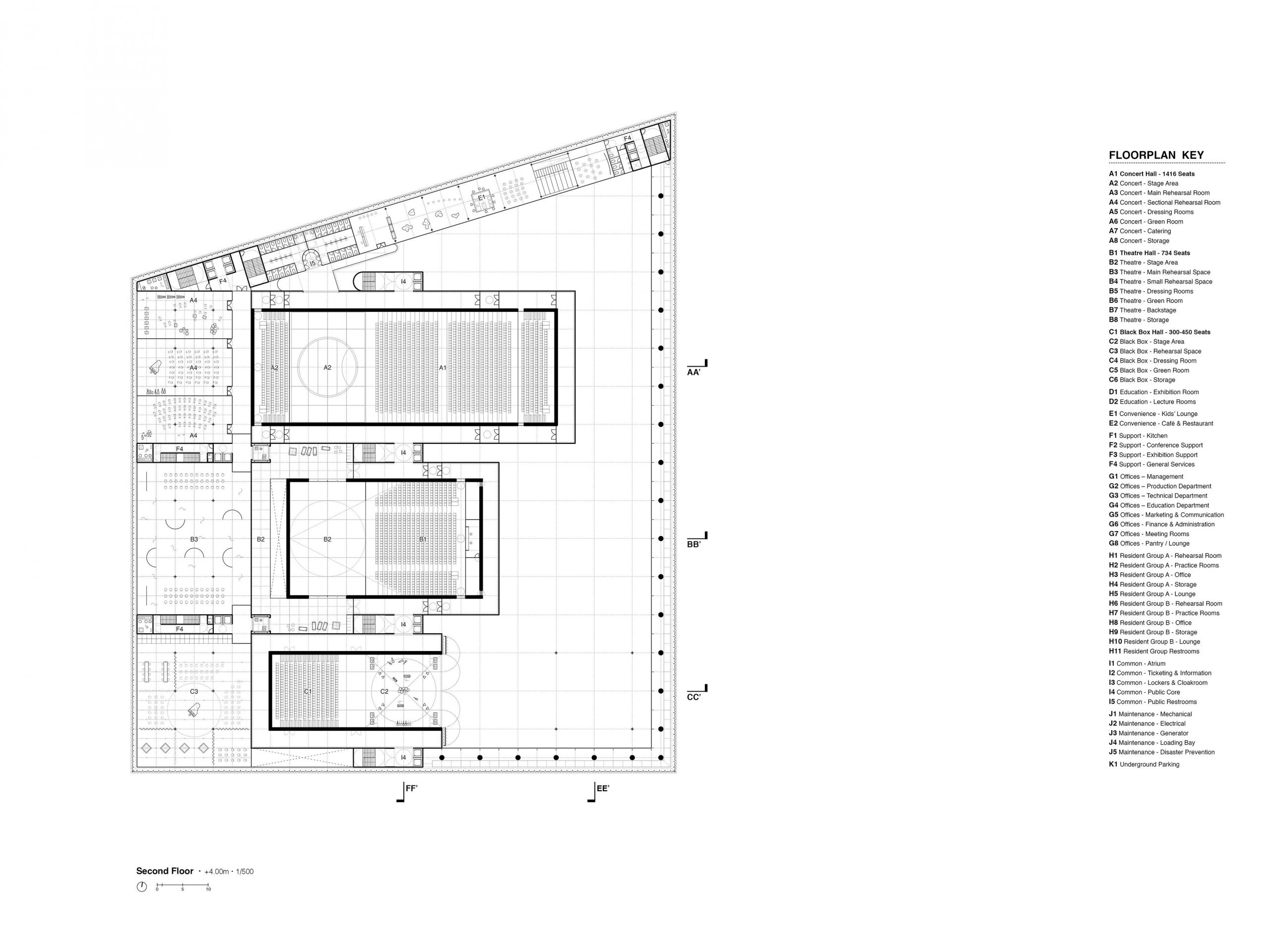
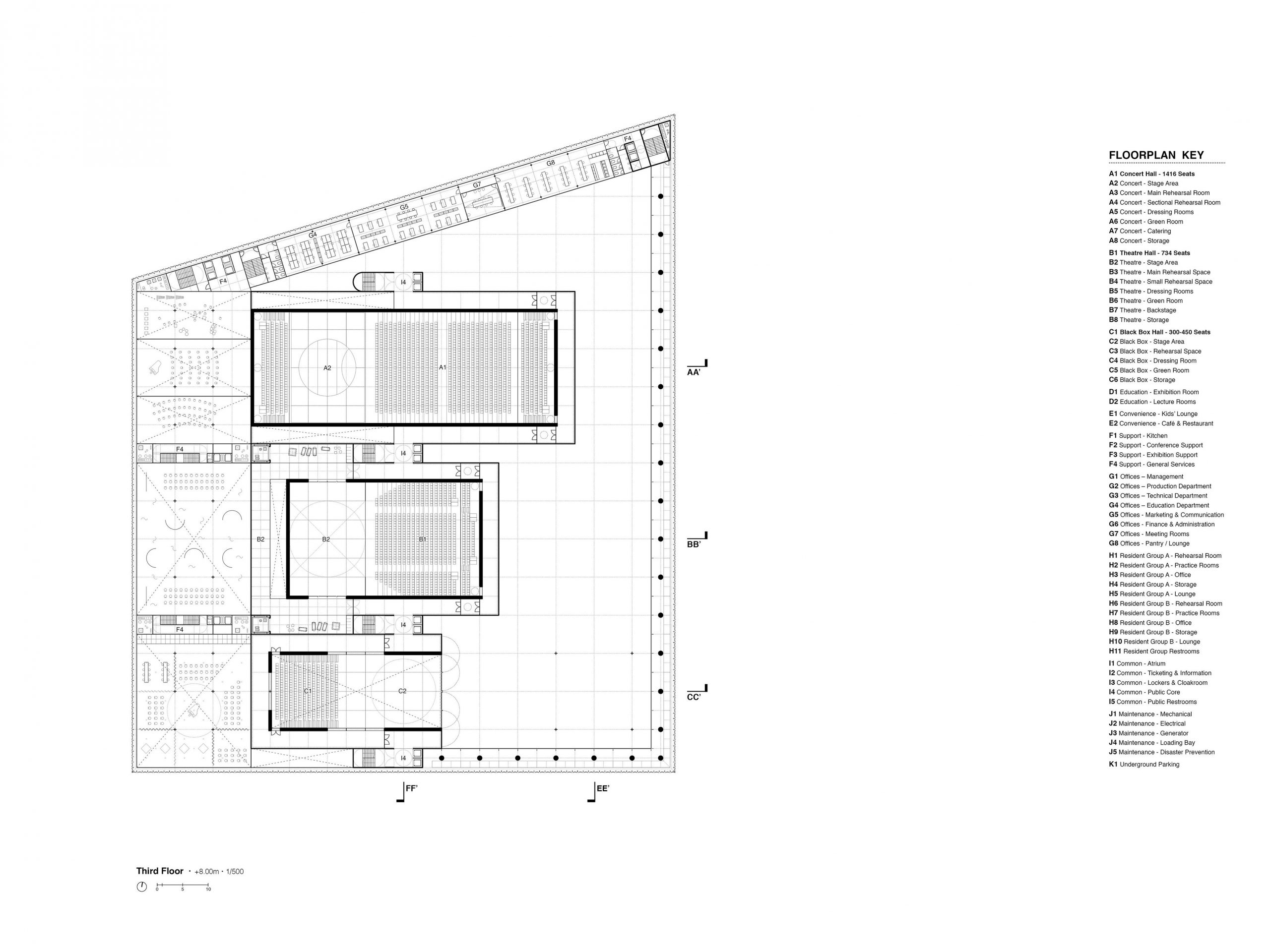
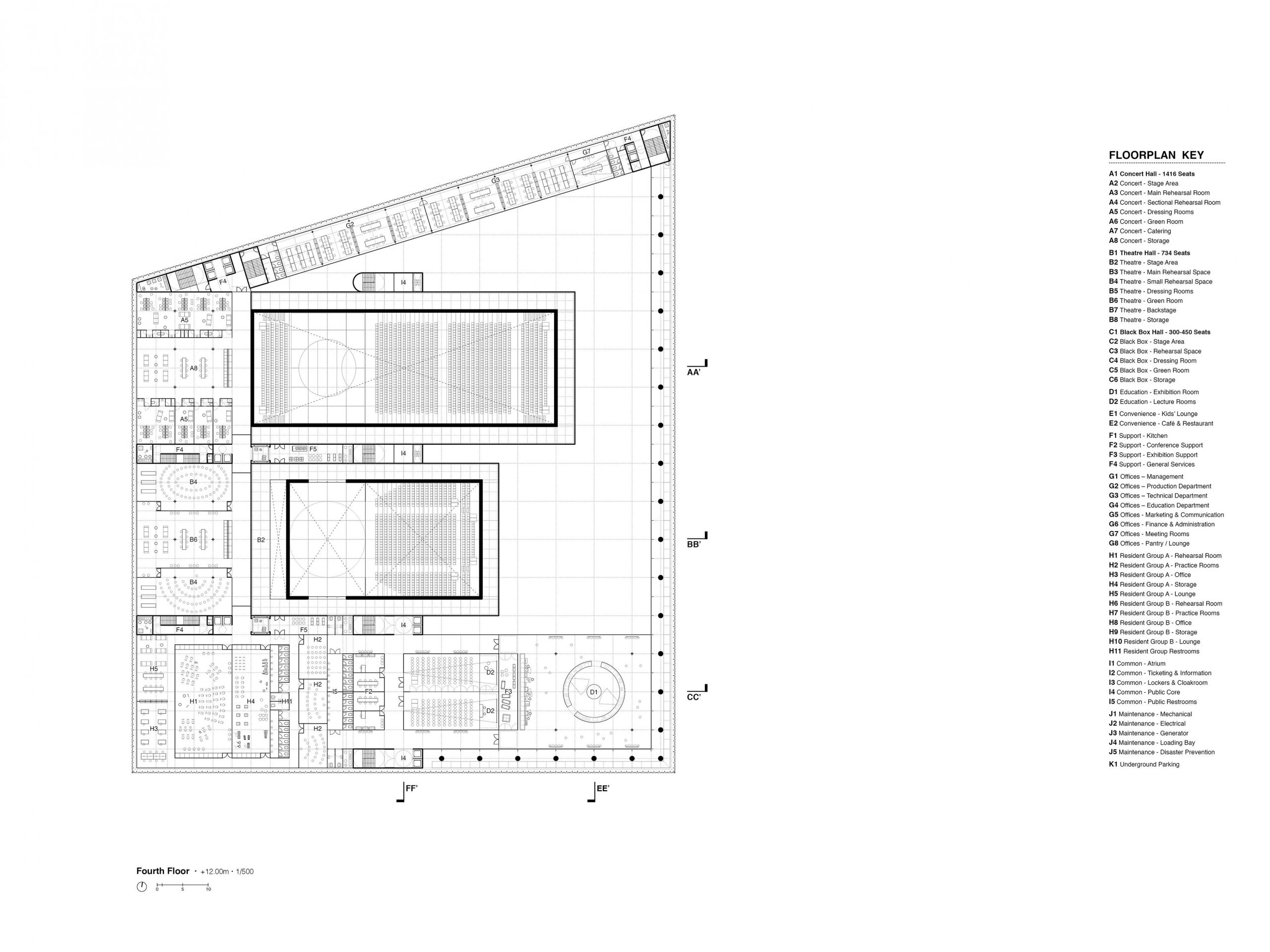
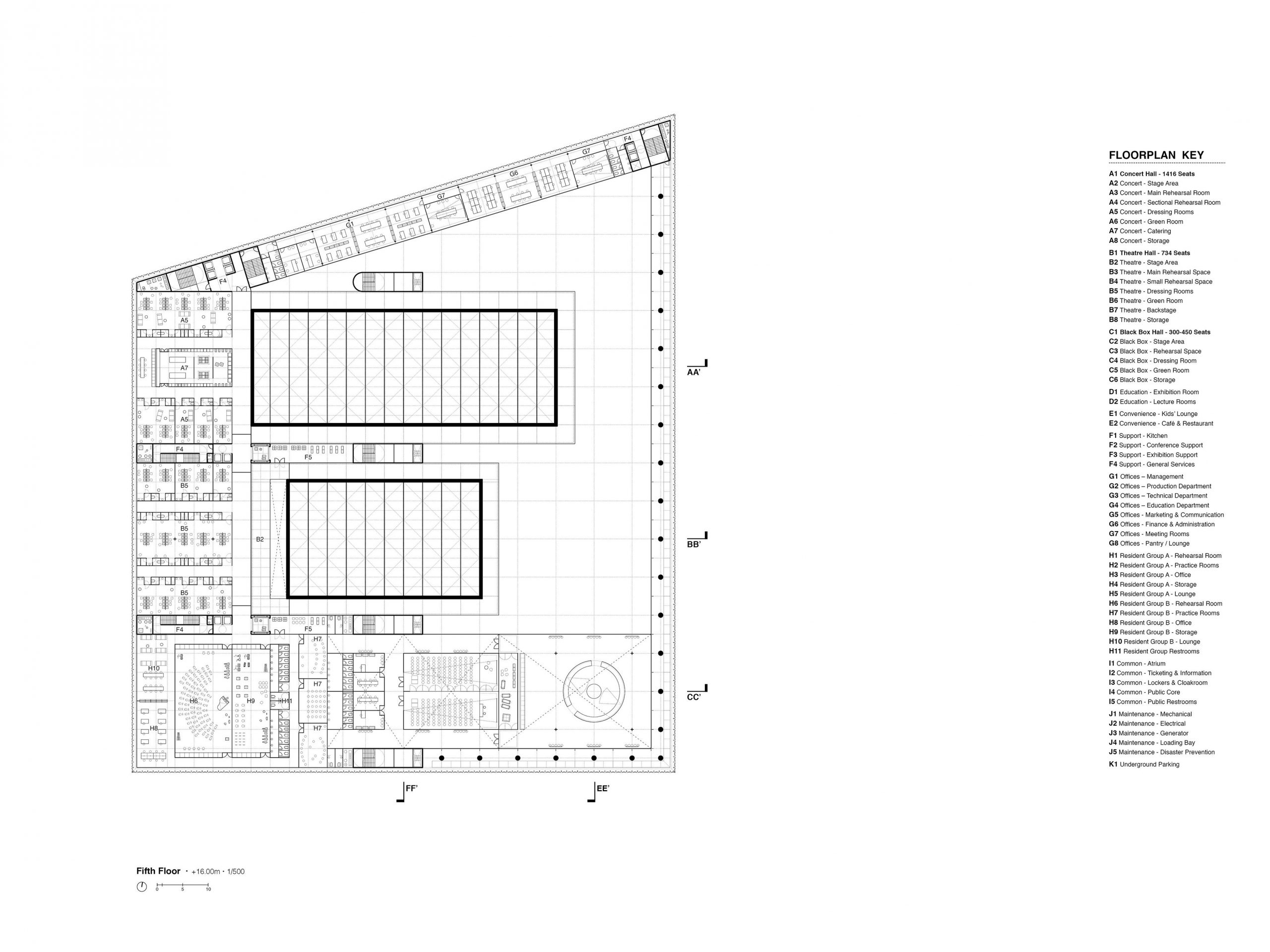
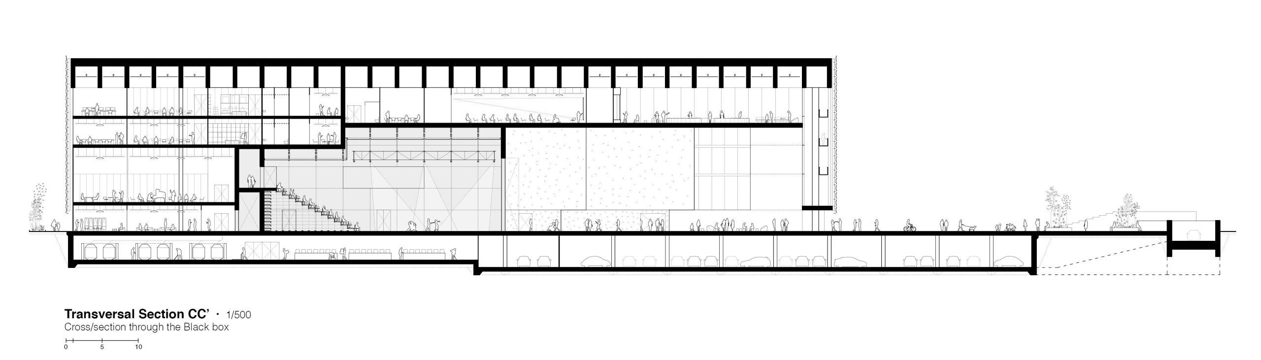
The concept for the new Chungbuk Art Center is conceived as a “Korean Culture Box” —an architectural container that embodies both symbolism and openness. The “box” operates as a unifying spatial and cultural framework, within which three distinct volumetric forms house the main performance venues: the grand symphony hall, the chamber music hall, and the multipurpose black box theater.
Each of these volumes is treated as a unique entity, reflecting the diversity of artistic expression within a coherent architectural whole. Anchored by a vast, open public atrium, the interior dissolves hierarchical boundaries fostering accessibility, encounter, and shared cultural experience. The enclosing “box” thus symbolizes protection and containment of Korea’s creative vitality, while its open, transparent interfaces invite the city inward.
Through this synthesis, the Art Center stands as both a symbolic container of cultural legacy and an open stage for contemporary expression and civic life.

Public Space Connectivity: Interior-Exterior Continuity
The three-venue music and art complex establishes a dynamic dialogue between interior and exterior realms through its seamless connection to an expansive outdoor plaza. Conceived as an extension of the cultural program, the plaza functions not merely as a forecourt but as an active, performative landscape that dissolves the boundaries between architecture and urban space. This spatial porosity encourages informal gatherings, open-air performances, and spontaneous interactions, fostering an inclusive cultural ecosystem.
The plaza’s material palette, lighting, and landscape design mirror the interior spatial rhythms, ensuring aesthetic coherence and perceptual unity. Together, the ensemble forms a holistic civic environment in which art, music, and social life interweave, enriching the visitor’s sensory and communal experience View of the Main Eastern Entry Facade from the vegetation public area next the Site while reinforcing the institution’s role as a vibrant cultural catalyst.
Landscape Strategy
The front plaza, positioned as the urban threshold, acts as a social condenser that visually and physically connects the park and the Art Center’s interior. The transparency of the main façade at ground level and its visual and physical connection to the interior atrium blur the distinction between indoor and outdoor realms, allowing cultural activity to spill seamlessly into the landscape and viceversa. By weaving circulation routes, visual corridors, and ecological continuity into a coherent whole, the design transforms the Art Center into both a cultural destination and a civic connector, a place where art and everyday life coexist in an atmosphere of openness, accessibility, and shared belonging.
Conceived as an extension of the cultural program, the outdoor plaza functions not merely as a forecourt but as an active, performative landscape that dissolves the boundaries between architecture and urban space. This spatial porosity encourages activity and fosters an inclusive cultural ecosystem.



View of the entrance space and the main atrium of the new Chungbuk Art Center. The Concert Hall volume
on the right is clad entirely in natural dark cork—like the other halls—both for its acoustic insulation properties
and to create a material contrast that highlights and elevates these crucial volumes.






The acoustic protection strategy for the Chungbuk Art Center complex integrates structural and spatial methodologies to
achieve exceptional sound isolation. A robust, high-density concrete ceiling slab functions as a primary acoustic barrier,
effectively attenuating low-frequency vibrations and airborne noise originating from the nearby airport. Complementing
this structural defense, the architectural plan employs an “onion” layering approach, wherein peripheral ancillary spaces
—such as lobbies, offices and support spaces as well as circulation zones—form successive protective envelopes around
the central performance spaces. This concentric configuration establishes a gradual acoustic gradient, progressively shielding
the inner core from external disturbances and ensuring the purity, resonance, and clarity essential to acoustic performance.











Exterior Expression: The legacy of traditional Korean Ceramics
South Korea’s ceramic tradition possesses profound potential to unify the regions of central South Korea through shared heritage, craftsmanship, and evolving identity. Provinces such as Chungcheong, North Jeolla, and Gyeonggi have long nurtured distinctive ceramic lineages grounded in common cultural origins. Abundant natural resources—fine clay, timber for kilns, and proximity to royal and monastic centers—have enabled these areas to flourish as hubs of ceramic production serving both daily and ceremonial life. Techniques such as onggi earthenware, celadon glazing, and buncheong decoration continue to act as cultural bridges among communities, reflecting collective aesthetic and spiritual values. By revitalizing this heritage through festivals, artist exchanges, and heritage trails, contemporary practitioners and institutions have transformed ceramics into a living network of interregional connection. This ongoing dialogue between tradition and innovation fosters regional pride, strengthens cultural continuity, and reimagines the ceramic arts as both a vessel of memory and a symbol of unity in modern Korea.
Facade System: Korean ceramics as a Bioclimatic Façade
The façade is conceived as a bioclimatic doubleskin system that replaces conventional louvers with Acoustic Ceramic Circular Tiles, a contemporary interpretation of Korean pottery.
Supported by a Steel Bracing Substructure, these glazed disks form a continuous ventilated screen that shades the interior, allows airflow, and ensures formal coherence. Behind it, a Translucent Curtain Wall defines the thermal enclosure, separated by a fourmeter air cavity acting as a passive climatic buffer. Seasonal solar gain and natural convection regulate the air cavity, improving thermal performance yearround.
The geometry and glazed ceramic material enhance sound absorption and provide acoustic protection against nearby aircraft noise, creating a calm interior atmosphere.
Locally manufactured using sustainable glazing techniques, the system merges environmental intelligence and cultural identity into a unified architectural expression: an envelope that breathes, protects, and resonates with its context.


Project Team
- Carlos Barranco
- Luis Collado
- Jose Luis de la Fuente
- Ignacio Espigares
- Inés Fernández
- Álvaro Mesquida
- Zach Michaliska
- Gonzalo Rojas
- Yinghao Zhang