KMUA
Cultural · Sejong, KR
SECOND PRIZE INTERNATIONAL DESIGN COMPETITION
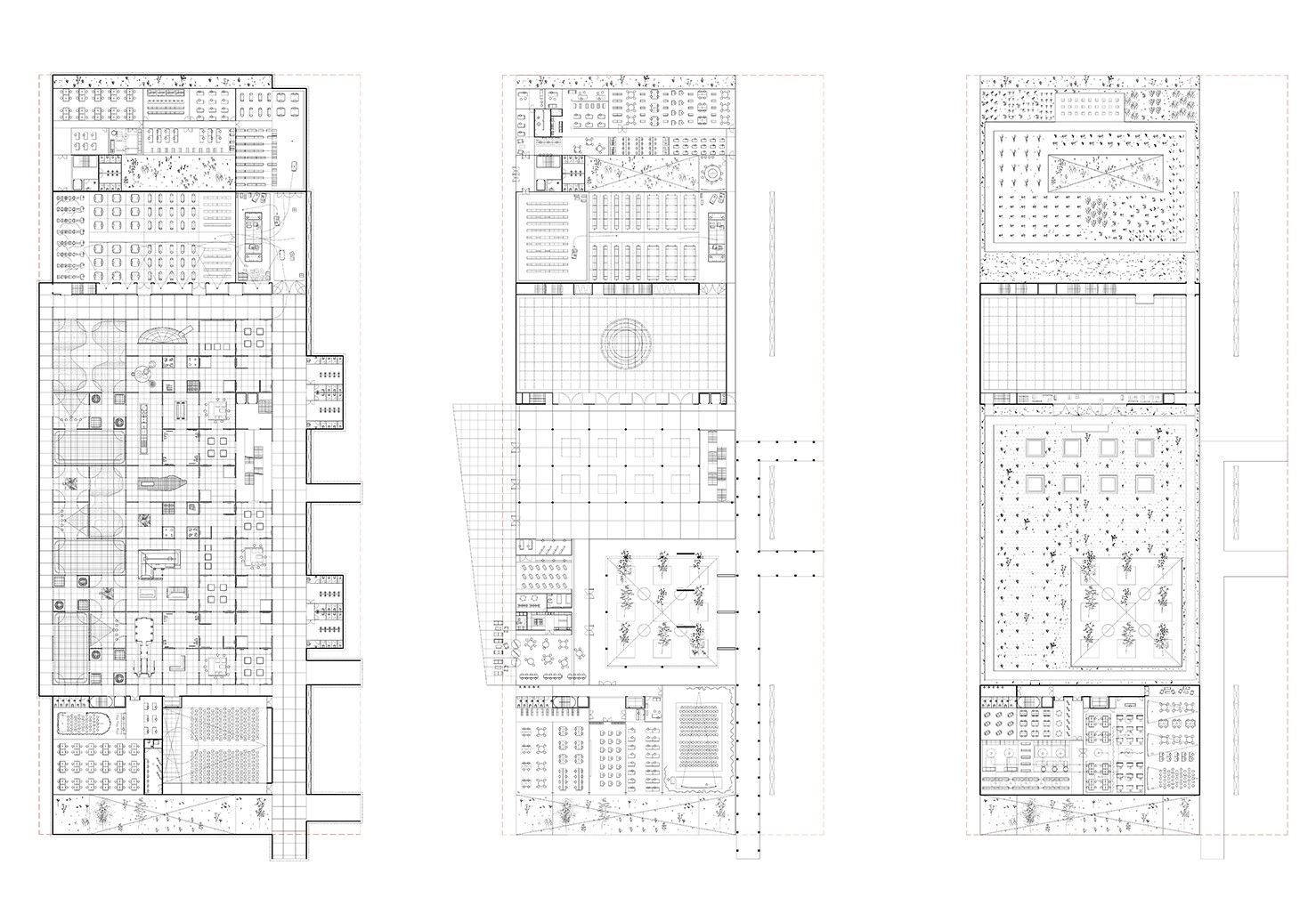
The museum seamlessly integrates architecture and nature to create serene, contemplative environments which will
form a unique connection between art, nature and the visitor providing the spaces with a solemn, calm and
timeless character. Social interaction within the museum is encouraged through the careful arrangement
of the different program offerings and by the provision of an open and transparent ground floor which
ensures physical and visual connectivity within the building and with the rest of campus.

“Chaos is the law of nature; Order is the dream of man.”
Henry Adams
Our proposal for the new Korean Museum of Urbanism and Architecture in Sejong embraces its location within the Master Plan vision as the space designated to represent Human Ecology. In our project, we aim to re-address Human Ecology by exploring ways to intensify the relationship between humans and the natural, social, and built environments. The new museum will attempt to strengthen this relationship by the establishment of a rich and complex dialog between these environments making it purposely difficult to detect where architecture ends and landscape begins, and blurring the lines between interior and exterior ensuring the visual and physical continuity of the museum with the rest of the National Museum Complex.




However, our pursuit for a rational, measurable and civilized world has resulted in a progressive separation from nature and often, somewhat paradoxically, from each other. “We have encased ourselves in controlled environments called buildings and cities….knowing any particular place and its regenerative rhythms and prospects only slightly” and suffering what can be described as a “deprivation of ecstasy”. To the point where “we find ourselves strangers in a world of our own making” finding it difficult to relate to each other, nature and the very built spaces we have created.




The new museum, which has been infused with a spirit of exploration and discovery, intents to be a dynamic environment where learning, teaching and social interaction occur smoothly within the different program spaces. The permanent exhibition space is intended to provide the visitor with a unique and dynamic journey experience through the history of Architecture and the City by providing multiple paths of discovery. The design offers a variety of observation opportunities inclusive of potential non-linear explorations of the different rooms and themes within the museum. This approach highlights the joy of learning through the magic of wandering.










Project Team
- Luis Collado
- Jose Luis de la Fuente
- Toni Cañellas
- Chen Ding
- Ignacio Espigares
- Brian Koehler
- Gonzalo Rojas
- Ana Sánchez Iza